イベント
EVENT
関・中濃エリア 見学会
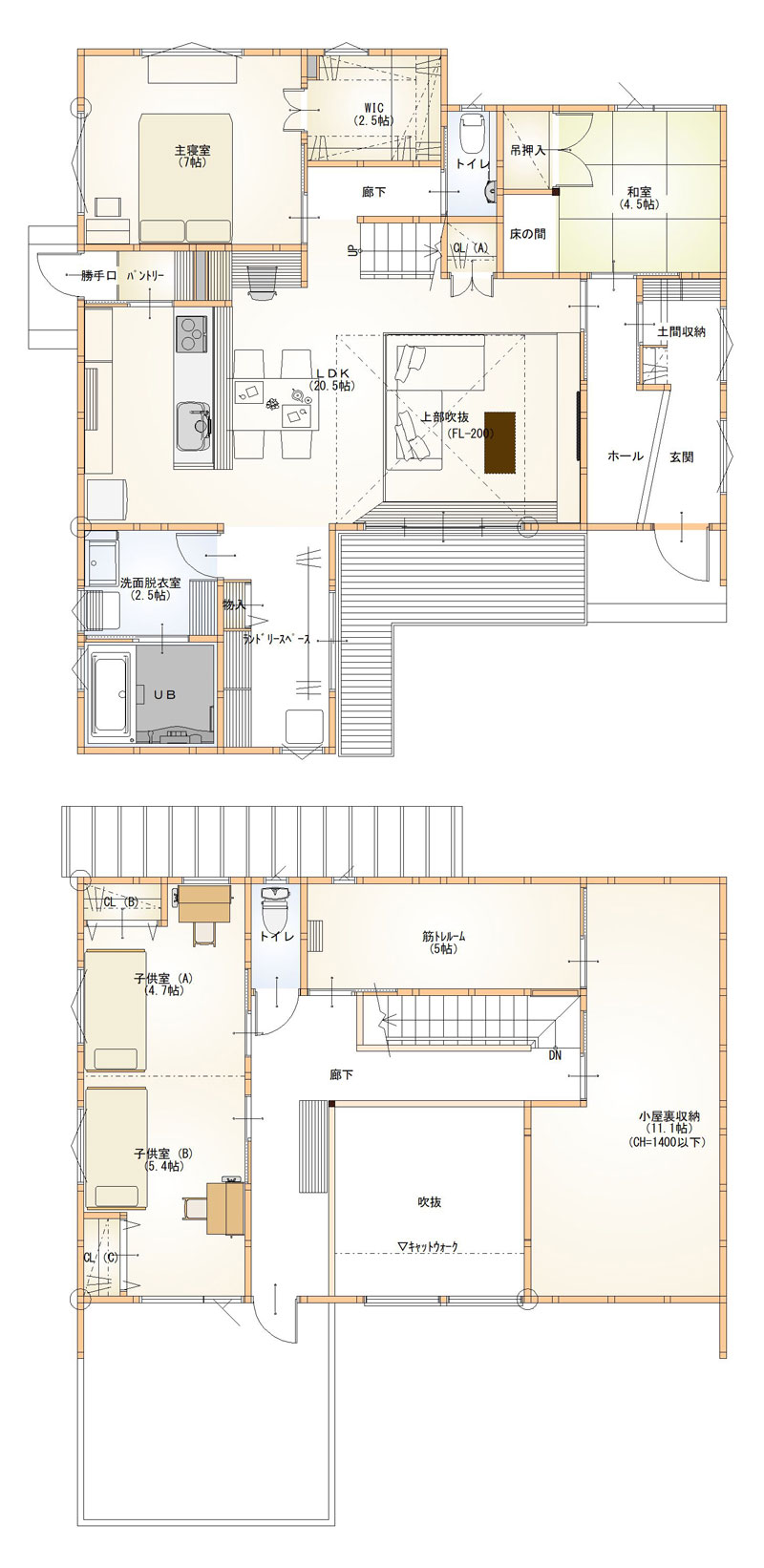
【岐阜市】1階で家事・育児が完結する家事ラク動線の半平屋の家

11月 毎週土・日・祝日
10:00~16:00
岐阜県岐阜市太郎丸
共働き子育て家族が暮らしやすい、1階で家事や育児が完結する「半平屋」住宅。
開放感抜群のリビングや、こだわりの趣味部屋もご覧いただけます。
こんな方におすすめ
- 1階で生活が完結する1.5階建てを希望している方
- 吹抜けのある開放的なリビングを希望している方
- 共働きで家事の時短を重視したい方
- 趣味に没頭できる部屋を検討している方
- 実際に家を建てた人のリアルな体験談を聞いてみたい方
オーナー様ご在宅!
ご希望の方にはオーナー様から直接お家のこだわりや思いをお聞きいただくことができます。
会場:岐阜県岐阜市太郎丸
お家の見どころポイント
POINT1
吹き抜けから自然光が差し込む開放感あふれるリビング

吹き抜けのある開放的なLDKには、高窓からやわらかな自然光が降り注ぎ、心安らぐ落ち着いた空間に。
リビングには床を一段下げた「ダウンリビング」を採用することで、より広々とした開放感を実感できます。
また、段差部分は腰掛けるのにちょうどよく、たくさんのご友人が集まった際にも便利です。
POINT2
子育て家族に嬉しい家事がラクになる動線設計

キッチンのすぐ隣に洗面脱衣室とランドリースペースを配置し、調理と洗濯の家事動線を最短に。
さらに、窓からはウッドデッキへ直接出られるため、外干しもわずか数歩。
室内干し・外干しのどちらもスムーズにでき、天候に左右されにくいのも嬉しいポイントです。
POINT3
趣味を楽しむご主人こだわりの空間

2階の小屋裏収納の先には、ご主人専用のトレーニングルーム。
体を動かすのが好きなご主人のために、家族の時間を邪魔せず、好きなタイミングでトレーニングができる
プライベート空間を設けました。
玄関には、ご主人のもう一つの趣味であるロードバイクをスタイリッシュに収納。

壁掛け仕様にすることで、見せる収納としても楽しめ、室内保管もストレスフリー。
玄関のため出し入れもスムーズで実用性も抜群です。
POINT4
今も将来も暮らしやすいほぼ平屋の間取り

1階に主寝室、2階に子供部屋と趣味部屋のみという間取りで、生活や家事がほぼ1階で完結。
お子様が小さかったり、歳を重ねたりした時にも平屋のような暮らしができるので、身体に負担が少なく安心して長く暮らすことができます。
『1階で家事・育児が完結する家事ラク動線の半平屋の家』の完成見学会期間限定の見学会です!
ぜひご覧ください。
【お問合せ・ご予約】
下記フリーダイヤルまたはお申し込みフォームよりお願いいたします。
事前にご予約いただいた方に会場の詳細をお知らせいたします。
事前のご予約なしで見学をご希望の方は森住建 関店までお越しください。





