イベント
EVENT
岐阜エリア 大垣・西濃エリア 見学会
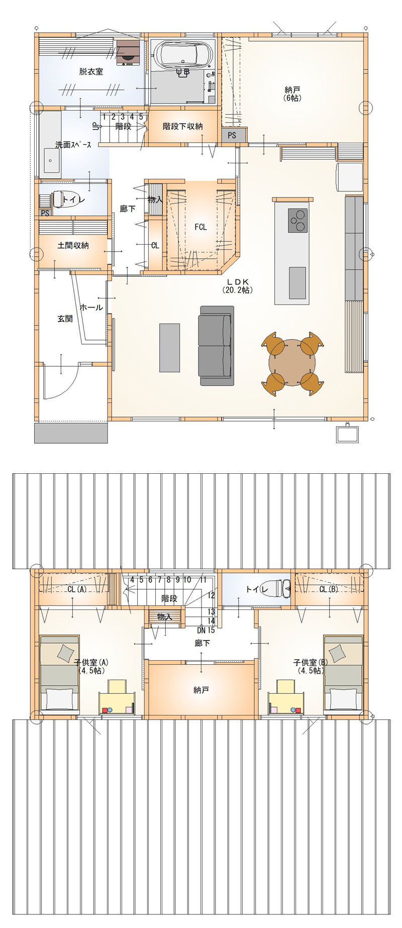
【瑞穂市】ゆとりと効率のある半平屋の住まい

11月30日まで毎日開催 ※火・水曜日除く
10:00~16:00
岐阜県瑞穂市
自然素材のぬくもりと、ステンレスなど無機質素材のクールな質感が共存する住まい。
「平屋のように1階で暮らしが完結する間取り」と「デザイン性・機能性の両立」を体感いただけます。
こんな方におすすめ
- 生活や家事を1階で完結させたい方
- デザイン性と機能性を両立させた家を見てみたい方
- 木の質感と無機質なデザインのバランスに惹かれる方
- 隠せる収納やスマートな間取りに興味のある方
会場:岐阜県瑞穂市本田
お家の見どころポイント
POINT1
木のぬくもり × 無機質の融合デザイン

ラワン合板の天井を取り入たLDKは、木の温もりと無機質なキッチンが絶妙に調和。
時間とともに深まる味わいが、家族の成長とともに変化していきます。
PONT2
キッチンが主役の無駄のないLDK

無駄をそぎ落としたデザインと、機能性を兼ね備えたオールステンレスのキッチンがLDKの中心に。
上質で落ち着いた空間の中に、暮らしやすさと美しさを共存させました。
POINT3
暮らしを整える「隠す収納」

玄関の広い土間収納、ファミリークローゼット、廊下のクローゼットなど、用途ごとに分けた“見せない収納”を設計。
余白のある空間に素材の美しさが引き立ちます。
POINT4
ゆとりと効率が両立する半平屋

1階に寝室を配置し、家事・生活動線がすべて1階で完結。
移動の負担を減らし、家族の成長や将来にも対応できる住まいです。
お家をチラっとお見せします!
木×無機質の洗練されたデザイン。ゆとりと効率のある半平屋の住まいの完成見学会は11月30日までの期間限定の見学会です!
ぜひご覧ください。
【お問合せ・ご予約】
下記フリーダイヤルまたはお申し込みフォームよりお願いいたします。
事前にご予約いただいた方に会場の詳細をお知らせいたします。
事前のご予約なしで見学をご希望の方は森住建 岐阜本店までお越しください。



